Actualités
Publié le 6 novembre 2025
Démarches à faire si vous êtes propriétaires ... [...]

Publié le 3 avril 2025
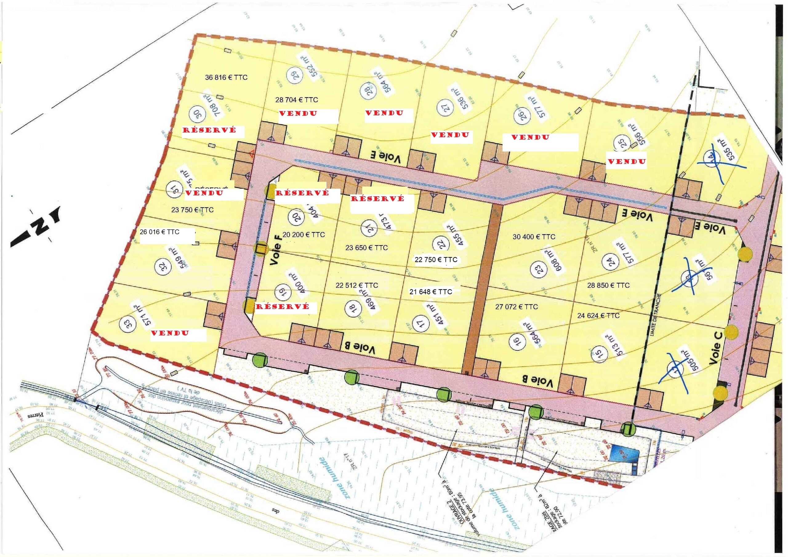
Les lots disponibles : 15 – 16 – 17 [...] [...]

Publié le 6 novembre 2025
Démarches à faire si vous êtes propriétaires ... [...]

Publié le 3 avril 2025
Les lots disponibles : 15 – 16 – 17 [...] [...]
